Downloads

MuckenhuberDownloads

Formulare

Abfallinformation – nicht verunreinigtes Bodenaushubmaterial < 2.000 t – Muckenhuber

Downloads

Abfallinformation – nicht verunreinigtes Bodenaushubmaterial < 2.000 t – BPM

Downloads

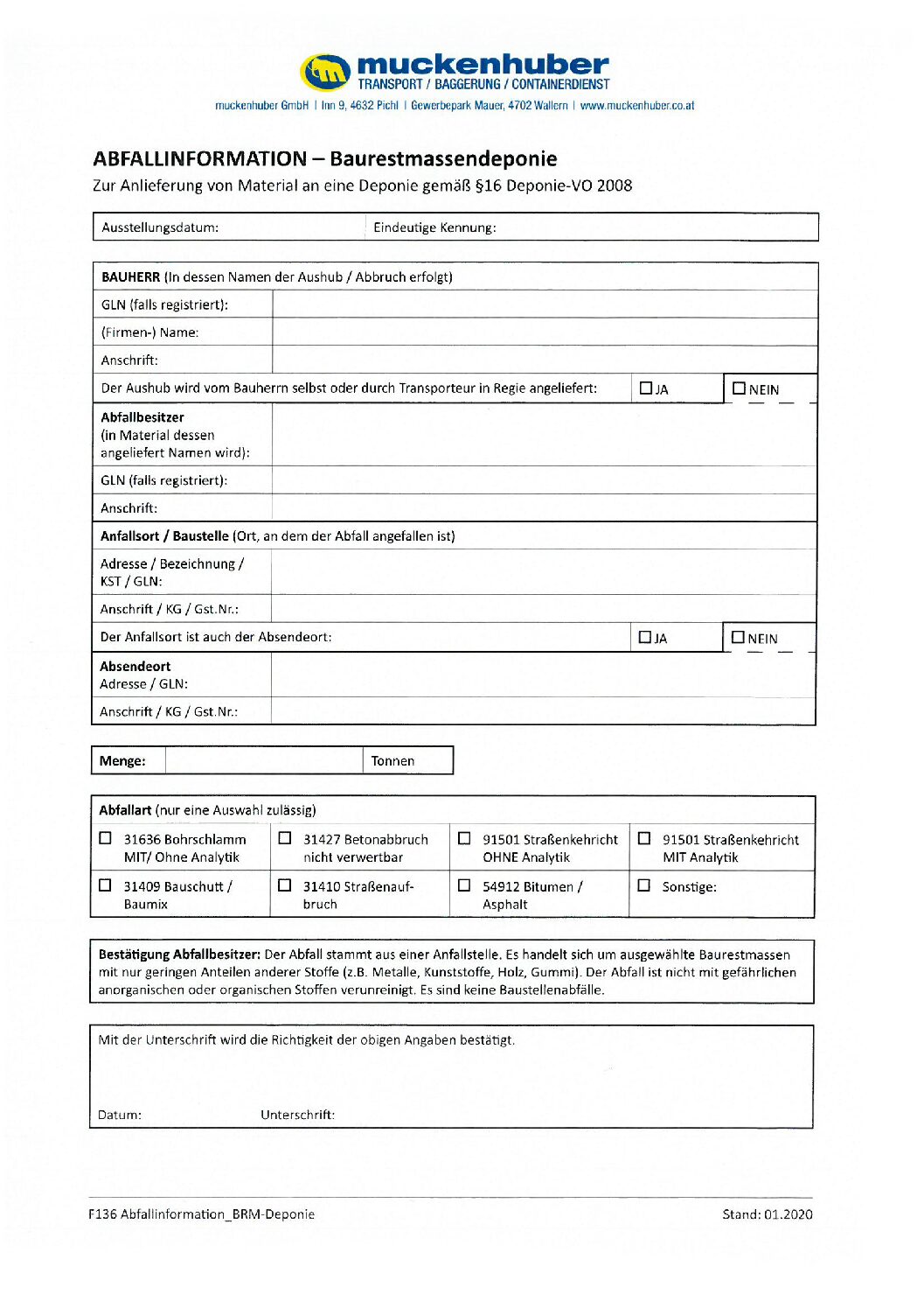
Formular Baurestmassen – Muckenhuber

Downloads

Downloads - Abfallarten

BODENAUSHUB

Downloads

ETERNIT & BAUSTOFFE AUS ASBEST

Downloads

GRÜN- & STRAUCHSCHNITT

Downloads

KÜNSTLICHE MINERALFASERN

Downloads

MISCHMÜLL (SPERRMÜLL)

Downloads

MISCHHOLZ

Downloads

BAUSCHUTT REIN

Downloads

BAUSCHUTT VERUNREINIGT

Downloads

BETON

Downloads

SCHROTT

Downloads
Allgemeine Hinweise – RICHTIGES BELADEN
Downloads

CONTAINER 7 m³

Downloads

CONTAINER 8 m³

Downloads

CONTAINER 10 m³

Downloads

CONTAINER 20 m³

Downloads

CONTAINER ABROLLER 11 m³

Downloads

CONTAINER ABROLLER 20 m³

Downloads

CONTAINER ABROLLER 31 m³

Downloads

MEGABOX 7 m³

Downloads

ABROLLPRESSE 20 m³

Downloads

ABSETZPRESSE 8-10 m³

Downloads

Downloads - Abfallart - Container - Abroller & auf Anfrage bestellbar

Abfallart – Container

Downloads

Information zum Gipsdeponierungsverbot

Downloads

Leistungserklärung

Leistungserklärung 001/2025

Downloads

Leistungserklärung 002/2025

Downloads

Leistungserklärung 003/2025

Downloads

Allgemeine Geschäftsbedingungen

Downloads
Bitte prüfen Sie Ihre Auswahl